AVR系列12kV(屏蔽型、非屏蔽型)固体绝缘环网柜
环网柜
AVR系列智能紧凑固体绝缘开关设备是本公司根据智能电网发展需求,融合“智能、节能、环保、免维”的设计理念,结合我国配电网实际状况与智能电网建设要求,采用一二次融合技术,研制生产的拥有自主知识产权的智能永磁(弹簧)真空开关设备,其集测量、控制、保护、通讯等功能于一体,智能化程度高。本产品适用于50Hz、12kV、24kV、40.5kV的电力系统,广泛应用于工业及民用电缆环网及供电末端工程,是保证电网安全、可靠、经济、高效运行的优选设备。
型号说明




注:如需更多配置方案,请与我公司联系。
使用环境
注:环境参数超出上表要求范围,请与我公司联系。
产品功能特点
上隔离外形图及外形尺寸


上隔离外形图及安装尺寸



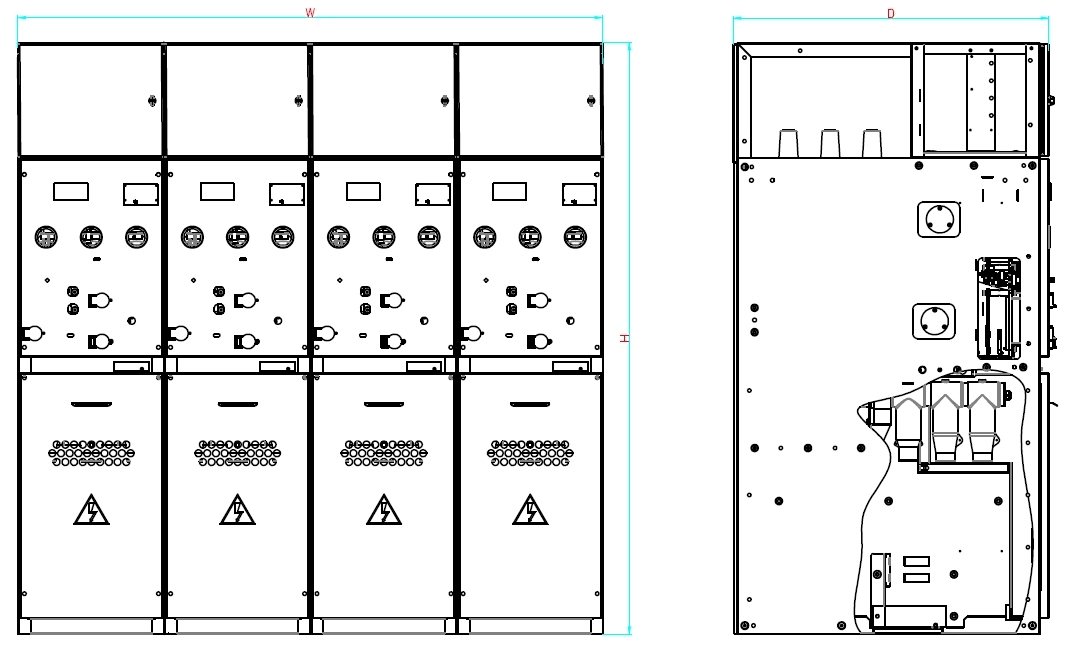
外形图及外形尺寸


Fixed calipers by Wilwood offer unmatched stopping power. The pistons in fixed calipers are located on both sides of the disc, allowing for evenly distributed clamping force. They apply more squeezing power and apply it more evenly during braking as force is directly applied to both sides. Multi-piston calipers allow for more even braking and, as a result, less pad distortion. The more number of pistons a caliper has, the more clamping force it provides. Thanks to the evenly distributed pressure, these calipers ensure an even wear pattern along the entire length of the brake pad. Usually these calipers have smaller diameter pistons than single-piston calipers.
The internal vane design of these vented rotors by Wilwood provides excellent heat dissipation during brake cycles. As the wheel spins, the vanes around the edge of the rotor draw air in and pull it through to help cool the rotor. With the extra heat dissipated there will be less brake fade. This rotor design by Wilwood combines the best features of a slotted rotor and cross-drilled rotor allowing your brakes to run cooler and sweep away water and dust. The cross-drilled and slotted rotors improve air circulation and increase brake pad bite, ensuring incredible stopping performance.





