环网柜
AVR系列智能紧凑固体绝缘开关设备是本公司根据智能电网发展需求,融合“智能、节能、环保、免维”的设计理念,结合我国配电网实际状况与智能电网建设要求,采用一二次融合技术,研制生产的拥有自主知识产权的智能永磁(弹簧)真空开关设备,其集测量、控制、保护、通讯等功能于一体,智能化程度高。本产品适用于50Hz、12kV、24kV、40.5kV的电力系统,广泛应用于工业及民用电缆环网及供电末端工程,是保证电网安全、可靠、经济、高效运行的优选设备。
型号说明




注:如需更多配置方案,请与我公司联系。
使用环境
名 称 | 单位 | 使用环境值 |
周围空气温度 | 上限温度 | ℃ | +50 |
下限温度 | --40 |
峰值日温差 | K | 30 |
海拔 | m | ≤5000 |
太阳辐射强度 | W/cm2 | 0.1 |
污秽等级 |
| Ⅳ |
覆冰厚度 | mm | 10 |
湿度 | 日相对湿度平均值 | % | ≤100 |
月相对湿度平均值 | ≤95 |
耐受地震能力 | 度 | ≤8 |
注:环境参数超出上表要求范围,请与我公司联系。
产品功能特点
保护功能 | 可以自动识别故障电流,实现瞬时电流速断、限时电流速断、定时过流、方向过流、过电压、欠电压、小电流接地系统的单相接地保护,冷负荷启动抑制开断等功能。 |
测量功能 | 可以测量三相电流、三相电压、有功功率、无功功率、有功电量、无功电量、峰/谷电量、功率因数及频率等。 |
控制功能 | 可以实现就地操作与远方控制,可以根据要求自动实现线路的故障定位、故障隔离并迅速恢复非故障线路供电,实现低频自动减载、电容器自动投切、备用电源自动投切等控制功能。 |
数据记录功能 | 可以自动记录并储存运行、操作及故障等信息。 |
智能化功能 | 可以进行电网参数的在线综合分析,在线监测断路器的性能参数,在线编程,可以与配网自动化系统主站配合,实现开关设备的远程控制管理,实现就地、远方或分层控制式配网自动化系统功能。 |
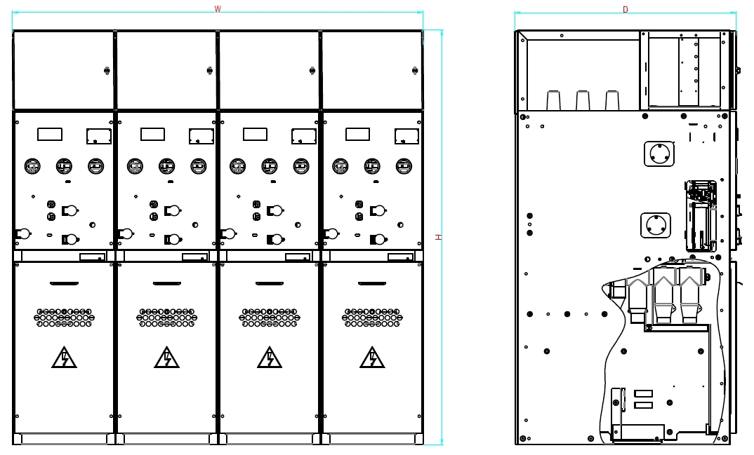
上隔离外形图及外形尺寸


开关设备间隔数 | 开关设备外形尺寸(mm) | 总重量(kg) |
W | D | H |
八间隔 | 3000 | 650 | 1660 | 1600 |
七间隔 | 2625 | 650 | 1660 | 1400 |
六间隔 | 2250 | 650 | 1660 | 1200 |
五间隔 | 1875 | 650 | 1660 | 1000 |
四间隔 | 1500 | 650 | 1660 | 800 |
三间隔 | 1125 | 650 | 1660 | 600 |
两间隔 | 750 | 650 | 1660 | 400 |
上隔离外形图及安装尺寸

开关设备间隔数 | 开关设备外形尺寸(mm) | 总重量(kg) |
W | D | H |
八间隔 | 3000 | 905 | 1660 | 1760 |
七间隔 | 2625 | 905 | 1660 | 1540 |
六间隔 | 2250 | 905 | 1660 | 1320 |
五间隔 | 1875 | 905 | 1660 | 1100 |
四间隔 | 1500 | 905 | 1660 | 880 |
三间隔 | 1125 | 905 | 1660 | 660 |
两间隔 | 840 | 905 | 1660 | 440 |


开关设备间隔数 | 开关设备外形尺寸(mm) | 总重量(kg) |
W | D | H |
六间隔 | 3000 | 780 | 1800 | 2240 |
五间隔 | 2500 | 780 | 1800 | 1860 |
四间隔 | 2000 | 780 | 1800 | 1480 |
三间隔 | 1500 | 780 | 1800 | 1100 |
两间隔 | 1000 | 780 | 1800 | 740 |
外形图及外形尺寸


开关设备间隔数 | 开关设备外形尺寸(mm) | 总重量(kg) |
W | D | H |
五间隔 | 3500 | 1130 | 2200 | 3750 |
四间隔 | 2800 | 1130 | 2200 | 3000 |
三间隔 | 2100 | 1130 | 2200 | 2250 |
两间隔 | 1400 | 1130 | 2200 | 1500 |